Сооружение станционных комплексов

Сооружение станционных комплексов

Сооружение станционных комплексов

Петербургские метростроители освоили сооружение различных типов станций.

Станции глубокого заложения

  • Пилонная станция: щитовая проходка пилот-тоннелей, сооружение среднего зала с использованием механизированных способов разработки грунта и установки блоков обделки, разработка пилонов роботизированными механизмами Brokk, Kaiser. Примеры таких станций: «Владимирская», «Площадь Ленина», «Пушкинская».
    ССК 1.jpg 
  • Колонная станция (ст. «Крестовский остров»). Представляет собой центральный и два боковых зала, взаимопересекающиеся разомкнутые кольца обделок которых опираются на общий для каждой пары залов конструктивный элемент — колонну. Примеры колонных станций: «Комендантский проспект», «Звенигородская», «Адмиралтейская», «Автово», «Ленинский проспект», «Приморская».
    ССК 2.jpg 


  • Односводчатая станция. Первая станция такого типа – «Площадь Мужества». Представляет собой однообъемный зал, в котором располагается островная платформа, пути и подплатформенные помещения.

    ССК 3.jpg 


 

Также петербургскими метростроителями реализован проект двухуровневой односводчатой станции – «Спортивная».

ССК4.jpg 

  • Станция типа «горизонтальный лифт». Колонно-стеновая станция глубокого заложения без боковых посадочных платформ. Примеры подобных станций: «Парк Победы», «Маяковская», «Гостиный Двор», «Василеостровская».
    ССК 5.jpg 

     

Станции мелкого заложения

  • Сооружение открытым способом (ст. «Ленинский проспект»). Станции сооружаются на глубине около 20 метров и имеют, в отличие от станций глубокого заложения, прямоугольное сечение.

  • Сооружение методом Top-Down. Станции сооружаются сверху вниз закрытым способом, ограниченной по бокам «стеной в грунте», сверху железобетонной плитой покрытия. Выдача грунта и подача материалов производится через оставленный в плите покрытия технологический проем.
    ССК 6.jpg 

При двухпутном исполнении перегона станция мелкого заложения сооружаются с боковым расположением платформ (ст. «Новокрестовская»).

ССК 7.jpg 

  

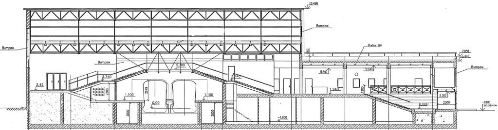
  • Наземная станция (ст. «Шушары»). Располагается на поверхности и, как правило, примыкает к депо.
    ССК 8.jpg